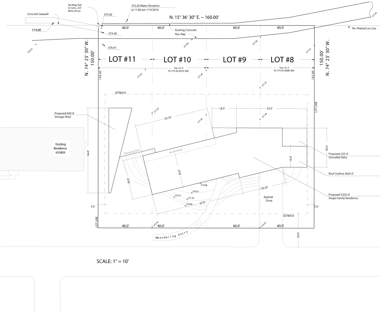
Erie Lake Home
Brownstown // MI
A contempary home built alongside Lake Erie, the aquatic border between the U.S. and Canada, was designed with framing this lake at its core. The living spaces all reside on the cantilevered second story, leaving a window below from street level to the lake. Above a series of windows and elevated decks look out, scooping in the sound of the waves. 
The clients of this home are avid collectors of art, and so a long corridor with large chunks of wall space was incorporated to allow a seamless gallery experience while traversing the home.
West / Lake Face
South Face
North Face
East / Street Face
 
             
             
             
             
             
             
             
            